
Appartement à LIÈGE
Nouveau
Plus d'informations à propos de ce bien
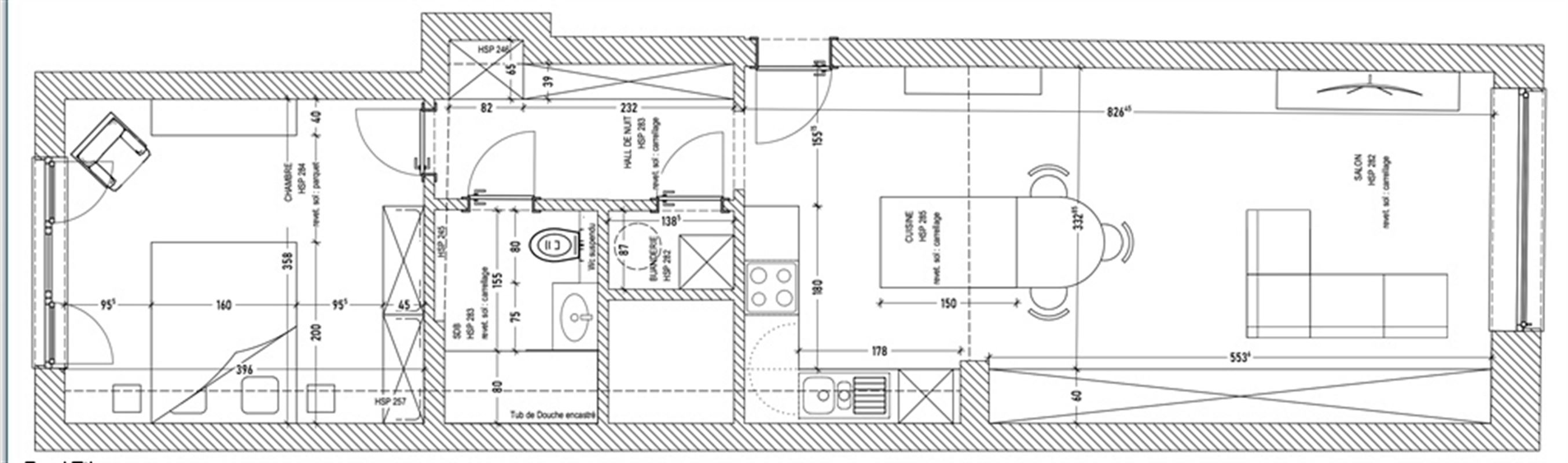
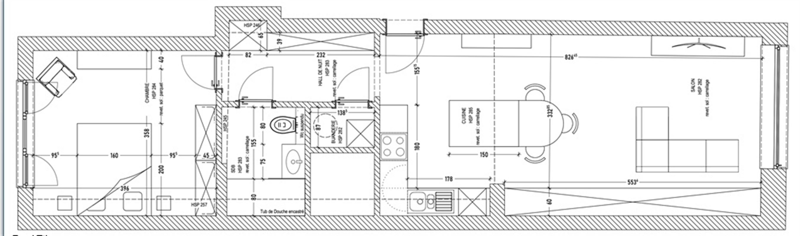
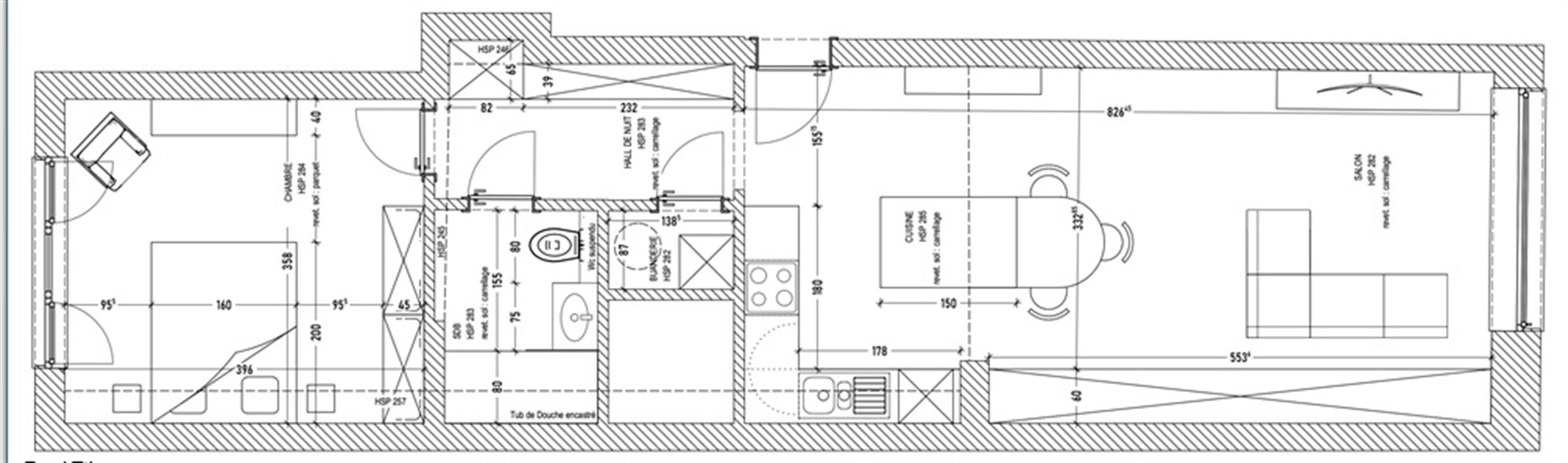
Appartement 1 chambre (69 m²) avec belle vue sur Meuse, situé au 1er étage d'une résidence du quai Marcellis. Il dispose d'un grand living avec cuisine équipée complète, hall de nuit, buanderie, salle de douche, et 1 chambre. Première occupation après rénovation intégrale. Porte blindée - visiophone - volet électrique - ventilation - Double vitrage avec filtre solaire. Libre de suite pour un bail de longue durée (9 ans). Charges: provisions de 170 euros/mois (communs et chauffage).Général
- Loyer 800,00 €
- Meublé Non
- Surface habitable 69,00 m²
- Etat Neuf
- Alarme Non
- Double vitrage Oui
- Type d'énergie du chauffage C.C. au mazout
- Nombre de chambres 1
- Nombre de salle de bain 1
Intérieur
- Surface de la salle de séjour 32 m²
- Toilettes 1
- Cuisine Oui
- Type de cuisine Armoires et appareils
Extérieur
- Année de construction 1965
- Nombre d'étages 8
- Terrasse Non
- Jardin Non
Energie
- Classe énergétique
- PEB No. 20240116002787
- E spec 153 KWh/m².an
- E totale 10489 KWh/an
Finances
- Prix 800 €
Autres biens à louer

2
80 m²
786 m²

3
108 m²



75 m²

280 m²

397 m²

3
140 m²

120 m²

5
300 m²
5000 m²

2
101 m²
490 m²

2
126 m²
490 m²
Vous souhaitez vendre votre bien ?
Faites confiance à une agence efficace et réputée. Confiez-nous la vente de votre bien.


