Maison de maître à LIÈGE

Nouveau

Plus d'informations à propos de ce bien

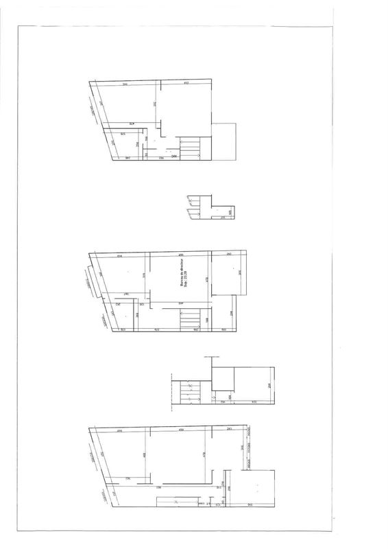
Située dans le quartier de Burenville, idéalement placée entre l'accès à la E25 et le centre-ville, cette magnifique maison de maître, affectée depuis 2009 à usage de bureaux propose sur environ 230m² habitables : Au rez-de- chaussée, un prestigieux hall d'entrée donnant sur un spacieux séjour, une salle à manger avec accès à la terrasse et au jardin en contrebas, une cuisine et une toilette. A l'entresol, une chambre. Au premier étage, le plateau propose un hall de nuit, deux grandes pièces (chambres), un dressing/bureau, une salle de bains et une belle terrasse. Le second entresol propose un débarras. Au second étage, le plateau propose un hall, deux chambres, une salle de douches, une kitchenette et une terrasse. Malgré qu'il nécessite des rénovations importantes pour être mis au goût du jour, cet immeuble dispose d'une chaudière récente et d'une électricité conforme. Le très grand jardin arboré et les facilités de parking dans la rue en font un immeuble très agréable à vivre. Au-delà d'une maison unifamilliale, le bien peut constituer un belle opportunité pour un projet de colocation au vu de ses nombreuses pièces ou, une transformation en deux appartements, un AVIS favorable de la ville ayant déjà été obtenu. Les nombreux éléments d'origine (hauts plafonds, moulures, boiseries, vitraux, marbre,...) ainsi que les grands volumes ne vous laisseront pas insensible. Prix : 320.000€ Ne manquez pas cette occasion, contactez-nous sans tarder au 04/223.23.88.

Général

  • Prix 320000,00 €
  • Meublé Non
  • Surface habitable 232,00 m²
  • Etat A rénover
  • Double vitrage Oui
  • Type d'énergie du chauffage C.C. au mazout
  • Nombre de chambres 5
  • Nombre de salle de bain 1

Intérieur

  • Surface de la salle de séjour 59,74 m²
  • Toilettes 1
  • Cuisine Oui
  • Type de cuisine Cuisine meublée

Extérieur

  • Année de construction 1918
  • Nombre d'étages 2
  • Surface terrasse 1 10,8 m²
  • Orientation de la terrasse 1 Nord
  • Terrasse 1
  • Jardin 1
  • Surface du jardin 391,17 m²

Energie

  • Classe énergétique
  • PEB No. 20251008007397
  • E spec 452 KWh/m².an
  • E totale 113092 KWh/an

Finances

  • Prix 320 000 €

Autres biens à vendre

28 500€
À vendre
Parking
Ref : 4446
LIEGE 1
35 000€
À vendre
Parking / Garage
Ref : 4533
LIÈGE
55 000€
À vendre
Garage/box
Ref : 4534
LIÈGE
550 000€
À vendre
Maison
Ref : 4539
LIÈGE
5
427 m²
152 m²
212 500€
À vendre
Appartement
Ref : 4507
LIÈGE
1
56 m²
180 000€
À vendre
Commerce
Ref : 4572
LIEGE 1
22 500€
Ref : 4575
LIÈGE
450 000€
À vendre
Duplex/triplex
Ref : 3086
LIÈGE
3
129 m²
318 000€
À vendre
Appartement
Ref : 3307
LIEGE 1
2
91 m²
212 500€
À vendre
Rez-de-Chaussée
Ref : 3341
LIEGE 1
1
55 m²
357 000€
À vendre
Appartement
Ref : 4020
LIEGE 1
2
101 m²
326 000€
À vendre
Appartement
Ref : 4087
LIEGE 1
2
91 m²
338 000€
À vendre
Appartement
Ref : 4120
LIEGE 1
2
101 m²
349 000€
À vendre
Appartement
Ref : 4130
LIEGE 1
2
101 m²
212 000€
À vendre
Rez-de-Chaussée
Ref : 4506
LIÈGE
1
70 m²
314 000€
À vendre
Appartement
Ref : 4517
LIÈGE
2
88 m²
345 000€
À vendre
Appartement
Ref : 4518
LIÈGE
2
101 m²
318 000€
À vendre
Appartement
Ref : 4519
LIEGE 1
2
91 m²
239 000€
À vendre
Maison
Ref : 4617
LIÈGE
5
135 m²
97 m²
340 000€
À vendre
Maison
Ref : 4667
LIÈGE
2
104 m²
130 m²
1 350 000€
Ref : 4682
LIÈGE
10
730 m²
12 500€
Ref : 4691
LIÈGE
12 500€
Ref : 4692
LIÈGE
175 000€
À vendre
Appartement
Ref : 4705
LIÈGE
1
74 m²
384 m²
215 000€
À vendre
Appartement
Ref : 4706
LIÈGE
2
370 000€
À vendre
Appartement
Ref : 4709
LIÈGE
2
170 m²
35 000€
À vendre
Parking
Ref : 3694
LIEGE 1
249 000€
À vendre
Appartement
Ref : 4722
LIÈGE
2
141 m²
671 m²
Nouveau
205 000€
À vendre
Appartement
Ref : 4737
LIÈGE
2
111 m²
Nouveau
235 000€
À vendre
Appartement
Ref : 4732
LIÈGE
2
84 m²
230 000€
À vendre
Appartement
Ref : 4666
LIÈGE
3
131 m²
690 m²
Nouveau
320 000€
À vendre
Maison de maître
Ref : 4738
LIÈGE
5
232 m²
526 m²
Nouveau
260 000€
À vendre
Maison de maître
Ref : 4740
LIÈGE
5
195 m²
225 m²
Nouveau
120 000€
À vendre
Appartement
Ref : 4728
LIÈGE
1
43 m²
110 000€
À vendre
Studio
Ref : 4195
LIÈGE
40 m²
450 000€
À vendre
Maison 4 façades
Ref : 4714
WANDRE
6
275 m²
840 m²
395 000€
À vendre
Appartement
Ref : 4696
LIÈGE
3
150 m²
100 000€
À vendre
Terrain à bâtir
Ref : 4424
ESNEUX
1157 m²

Vous souhaitez vendre votre bien ?

Faites confiance à une agence efficace et réputée. 
Confiez-nous la vente de votre bien.

Estimez votre bien