
Rez-de-Chaussée à LIEGE 1
Plus d'informations à propos de ce bien
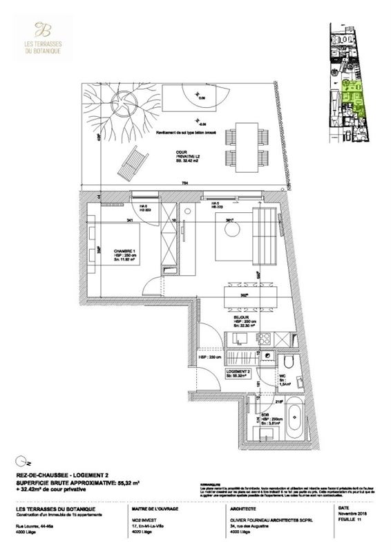
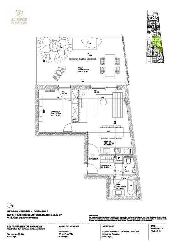
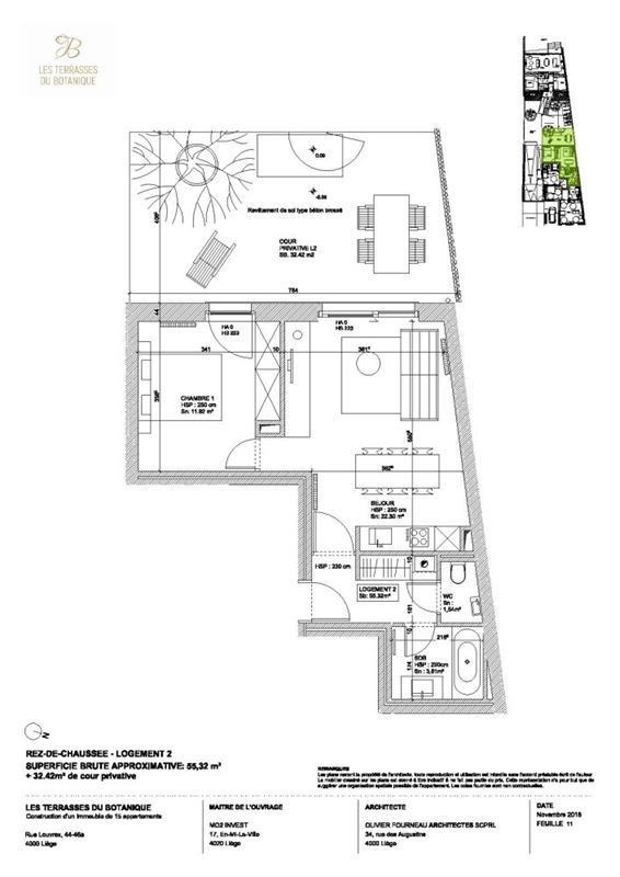
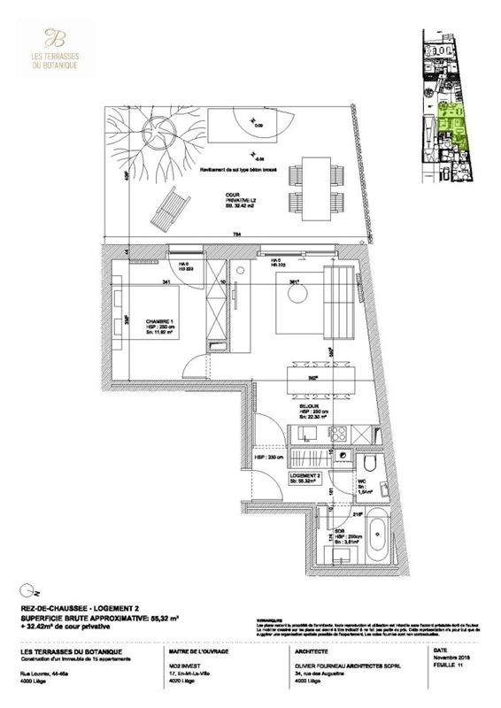
Situé au rez-de-chaussée arrière de l'immeuble, cet appartement de 55 m² comprend: hall, salle de bains, living et une chambre ainsi q'une belle cour privative de 32 m². Il peut également être affecté à usage de bureau ou profession libérale et, à ce stade de la construction, il est personnalisable et pourrait constituer une grande surface avec le rez-de-chaussée avant. Sa situation idéale au centre ville et à 50 mètres des HEC en font notamment un excellent produit de placement. Achat à 6 % de TVA possible pour occupants et investisseurs.Général
- Prix 210500,00 €
- Meublé Non
- Surface habitable 55,00 m²
- Etat Vente sur plan
- Alarme Non
- Double vitrage Oui
- Type d'énergie du chauffage C.C. au gaz
- Nombre de chambres 1
- Nombre de salle de bain 1
Intérieur
- Surface de la salle de séjour 23 m²
- Cuisine Oui
- Type de cuisine Armoires et appareils
Extérieur
- Année de construction 2024
- Orientation du bâtiment SO
- Nombre d'étages 6
- Surface terrasse 1 32 m²
- Terrasse 1
- Jardin Non
Finances
- Prix 210 500 €
Autres biens à vendre




1
50 m²

1
56 m²

397 m²



3
129 m²

2
91 m²

1
55 m²

2
101 m²

2
91 m²

2
101 m²

2
101 m²

1
70 m²

2
88 m²

2
101 m²

2
91 m²

2
90 m²
901 m²

2
80 m²

2
95 m²
332 m²

5
135 m²
97 m²

2
94 m²
1202 m²

2
170 m²

3
180 m²
90 m²


40 m²

1157 m²

798 m²

798 m²

4
211 m²
4780 m²
Vous souhaitez vendre votre bien ?
Faites confiance à une agence efficace et réputée. Confiez-nous la vente de votre bien.


