
Rez-de-Chaussée à LIÈGE
Plus d'informations à propos de ce bien
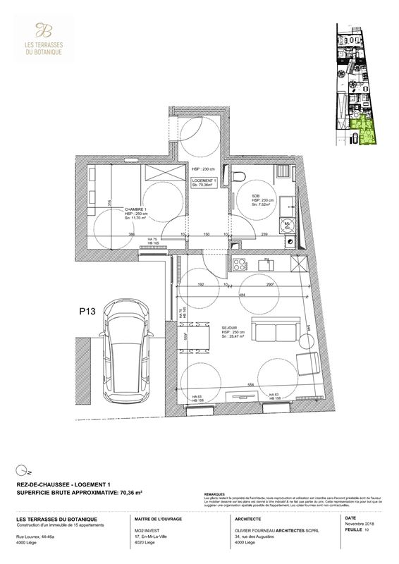
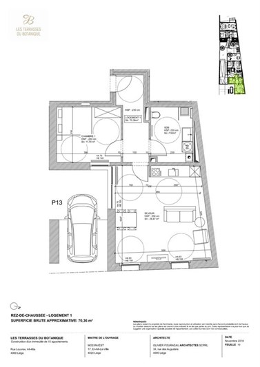
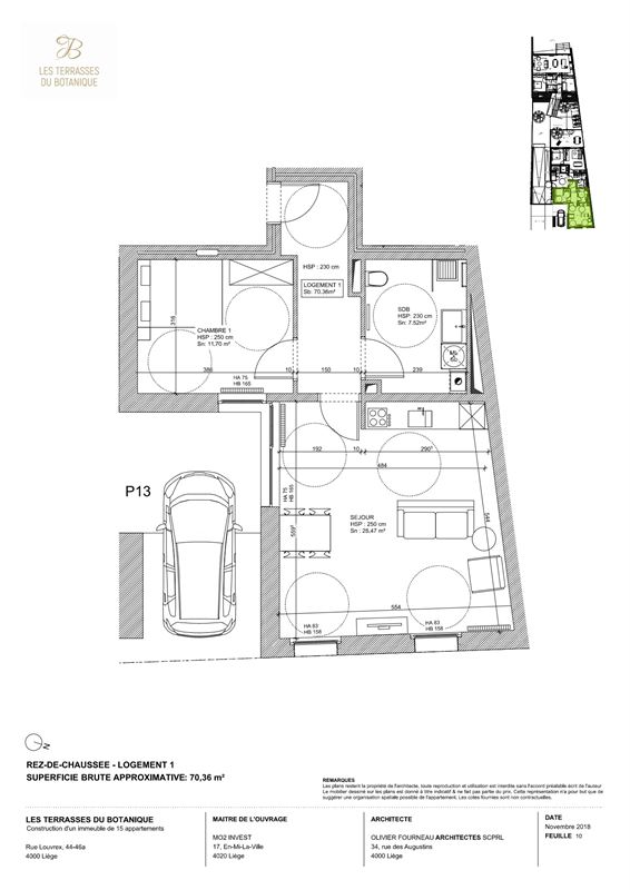
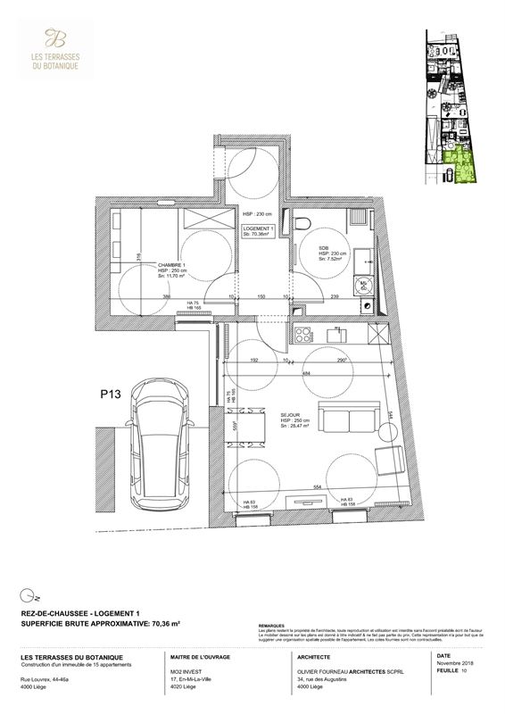
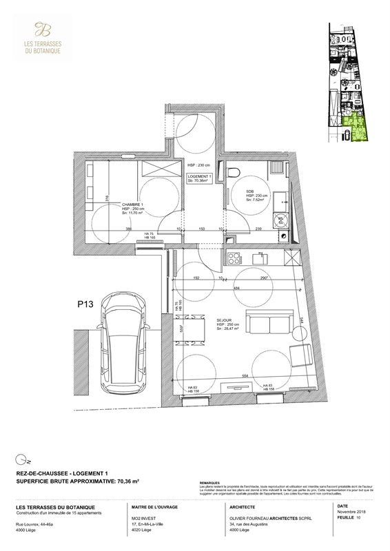
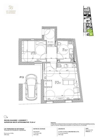
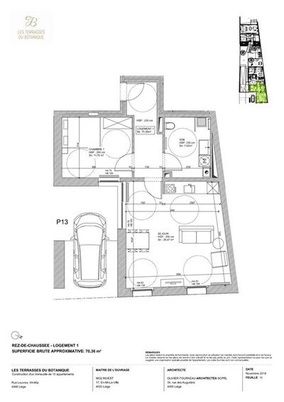
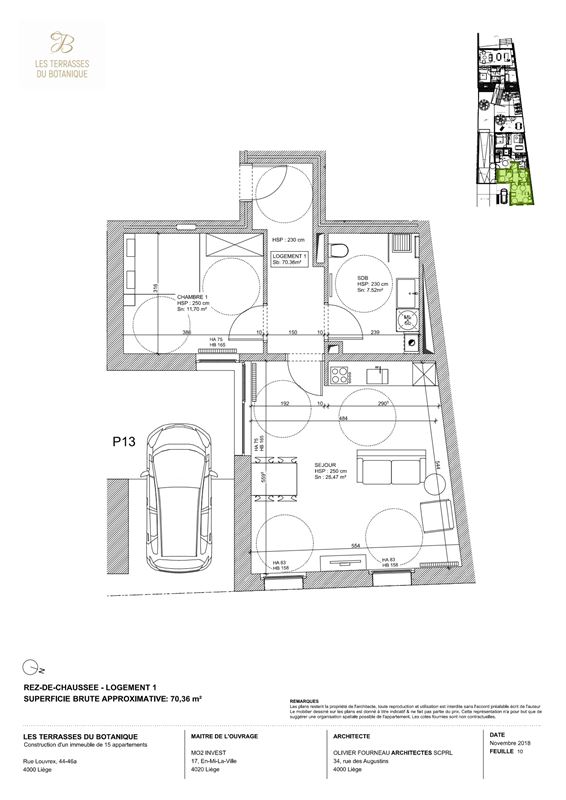
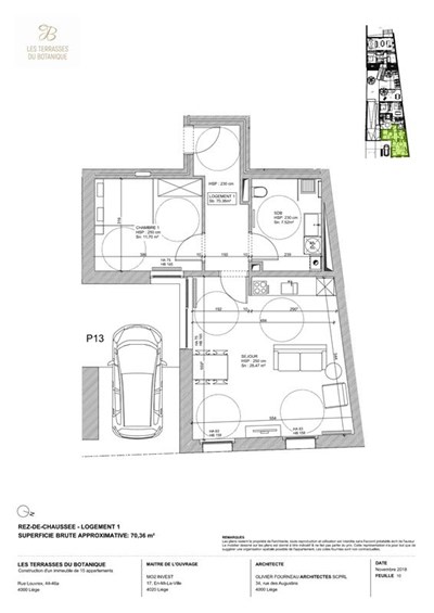
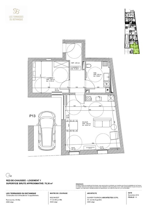
Situé au rez-de-chaussée avant de la résidence Les Terrasses du Botanique, ce bien de 70 m² est une opportunité rare et modulable, idéale pour un logement (ok PMR) , un bureau, une profession libérale ou un cabinet médical. Composition : hall d’entrée, salle de bains, séjour lumineux, une chambre. Personnalisable selon l'évolution de la construction - parking devant l'immeuble en option. Atouts de la résidence : Emplacement stratégique : à proximité du Jardin Botanique, de la gare Liège-Carré, des commerces de la rue Saint-Gilles et des HEC. Qualité et confort : architecture moderne, matériaux haut de gamme, PEB A, et espaces communs fonctionnels (espace vélo). Achat à 6 % de TVA possible!Général
- Prix 210000,00 €
- Meublé Non
- Surface habitable 70,00 m²
- Etat Neuf
- Double vitrage Oui
- Type d'énergie du chauffage Non communiqué
- Nombre de chambres 1
- Nombre de salle de bain 1
Intérieur
- Surface de la salle de séjour 27 m²
- Toilettes 1
- Cuisine Non
- Type de cuisine Non communiqué
Extérieur
- Année de construction 2025
- Nombre d'étages 7
- Terrasse Non
- Jardin Non
Finances
- Prix 210 000 €
Autres biens à vendre




1
50 m²

1
56 m²

397 m²



3
129 m²

2
91 m²

1
55 m²

2
101 m²

2
91 m²

2
101 m²

2
101 m²

1
70 m²

2
88 m²

2
101 m²

2
91 m²

2
90 m²
901 m²

2
80 m²

2
95 m²
332 m²

5
135 m²
97 m²

2
94 m²
1202 m²

2
170 m²

3
180 m²
90 m²


40 m²

1157 m²

798 m²

798 m²

4
211 m²
4780 m²
Vous souhaitez vendre votre bien ?
Faites confiance à une agence efficace et réputée. Confiez-nous la vente de votre bien.


