Maison 4 façades à WANDRE

Plus d'informations à propos de ce bien

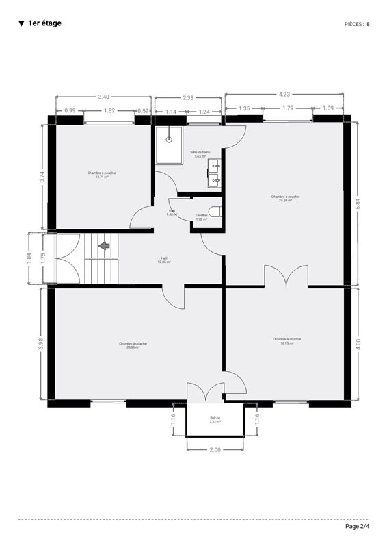
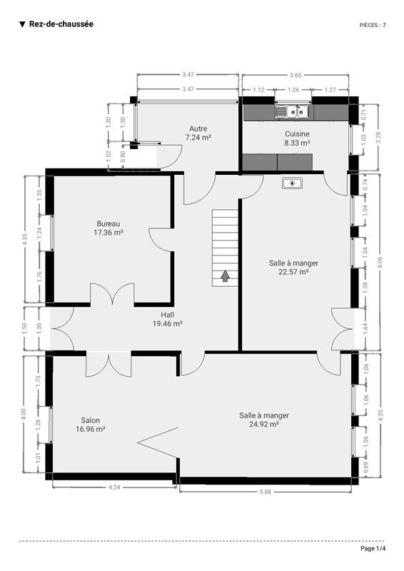
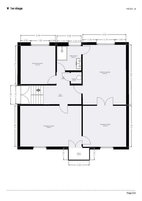
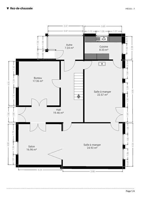
Située à Wandre, à quelques minutes à peine du centre de Liège, proche de la E25 vers Maastricht, cette spacieuse maison de Maître propose sur environ 275m² : un prestigieux hall d'entrée, un grand séjour et une salle à manger disposant de tous les éléments de décoration rappelant le prestige d'antan (anciennes cheminées en marbre, moulures, planchers d'époque,...), une cuisine d'époque, un bureau, une entrée de service et un accès à un grand jardin arboré. Au premier étage, la maison dispose d'un hall de nuit donnant accès à 4 grandes chambres, une salle de douches et une toilette. Au second, cette majestueuse demeure dispose d'un hall de nuit déservant 2 nouvelles chambres, un bureau et d'un grenier aménageable de près de 45m². En sous-sol, de grandes caves sont présentes sous tout le bâti. En terme d'état, des travaux sont à prévoir afin de moderniser les lieux tout en conservant leur charme inhérent. Grâce à ses beaux volumes, ouvrant la porte à toutes sortes d'aménagements, tant pour un usage unifamilial, qu'un usage de bureaux, mixte ou autre, cette demeure remplie de potentiel constitue une occasion sans pareil d'acquérir une maison spacieuse avec tout le charme de l'époque. Disponible à l'acte, elle est proposée au prix de 450.000€. Pour ne pas manquer cette occasion, contactez-nous sans tarder au 04/223.23.88.

Général

  • Prix 450000,00 €
  • Meublé Non
  • Surface habitable 275,00 m²
  • Etat A rafraîchir
  • Alarme Oui
  • Double vitrage Non
  • Type d'énergie du chauffage C.C. au gaz
  • Nombre de chambres 6

Intérieur

  • Surface de la salle de séjour 64,07 m²
  • Toilettes 2
  • Cuisine Oui
  • Type de cuisine Cuisine meublée

Extérieur

  • Année de construction 1919
  • Nombre d'étages 2
  • Surface terrasse 1 12 m²
  • Orientation de la terrasse 1 Ouest
  • Terrasse 1
  • Jardin 1
  • Surface du jardin 469,72 m²

Energie

  • Classe énergétique
  • PEB No. 20260213016127
  • E spec 568 KWh/m².an
  • E totale 213082 KWh/an

Finances

  • Prix 450 000 €

Autres biens à vendre

28 500€
À vendre
Parking
Ref : 4446
LIEGE 1
35 000€
À vendre
Parking / Garage
Ref : 4533
LIÈGE
55 000€
À vendre
Garage/box
Ref : 4534
LIÈGE
550 000€
À vendre
Maison
Ref : 4539
LIÈGE
5
427 m²
152 m²
212 500€
À vendre
Appartement
Ref : 4507
LIÈGE
1
56 m²
180 000€
À vendre
Commerce
Ref : 4572
LIEGE 1
22 500€
Ref : 4575
LIÈGE
450 000€
À vendre
Duplex/triplex
Ref : 3086
LIÈGE
3
129 m²
318 000€
À vendre
Appartement
Ref : 3307
LIEGE 1
2
91 m²
212 500€
À vendre
Rez-de-Chaussée
Ref : 3341
LIEGE 1
1
55 m²
357 000€
À vendre
Appartement
Ref : 4020
LIEGE 1
2
101 m²
326 000€
À vendre
Appartement
Ref : 4087
LIEGE 1
2
91 m²
338 000€
À vendre
Appartement
Ref : 4120
LIEGE 1
2
101 m²
349 000€
À vendre
Appartement
Ref : 4130
LIEGE 1
2
101 m²
212 000€
À vendre
Rez-de-Chaussée
Ref : 4506
LIÈGE
1
70 m²
314 000€
À vendre
Appartement
Ref : 4517
LIÈGE
2
88 m²
345 000€
À vendre
Appartement
Ref : 4518
LIÈGE
2
101 m²
318 000€
À vendre
Appartement
Ref : 4519
LIEGE 1
2
91 m²
239 000€
À vendre
Maison
Ref : 4617
LIÈGE
5
135 m²
97 m²
340 000€
À vendre
Maison
Ref : 4667
LIÈGE
2
104 m²
130 m²
1 350 000€
Ref : 4682
LIÈGE
10
730 m²
12 500€
Ref : 4691
LIÈGE
12 500€
Ref : 4692
LIÈGE
175 000€
À vendre
Appartement
Ref : 4705
LIÈGE
1
74 m²
384 m²
215 000€
À vendre
Appartement
Ref : 4706
LIÈGE
2
370 000€
À vendre
Appartement
Ref : 4709
LIÈGE
2
170 m²
35 000€
À vendre
Parking
Ref : 3694
LIEGE 1
249 000€
À vendre
Appartement
Ref : 4722
LIÈGE
2
141 m²
671 m²
Nouveau
205 000€
À vendre
Appartement
Ref : 4737
LIÈGE
2
111 m²
Nouveau
235 000€
À vendre
Appartement
Ref : 4732
LIÈGE
2
84 m²
230 000€
À vendre
Appartement
Ref : 4666
LIÈGE
3
131 m²
690 m²
Nouveau
320 000€
À vendre
Maison de maître
Ref : 4738
LIÈGE
5
232 m²
526 m²
Nouveau
260 000€
À vendre
Maison de maître
Ref : 4740
LIÈGE
5
195 m²
225 m²
Nouveau
120 000€
À vendre
Appartement
Ref : 4728
LIÈGE
1
43 m²
110 000€
À vendre
Studio
Ref : 4195
LIÈGE
40 m²
450 000€
À vendre
Maison 4 façades
Ref : 4714
WANDRE
6
275 m²
840 m²
395 000€
À vendre
Appartement
Ref : 4696
LIÈGE
3
150 m²
100 000€
À vendre
Terrain à bâtir
Ref : 4424
ESNEUX
1157 m²

Vous souhaitez vendre votre bien ?

Faites confiance à une agence efficace et réputée. 
Confiez-nous la vente de votre bien.

Estimez votre bien