
Appartement à LIEGE 1
Plus d'informations à propos de ce bien
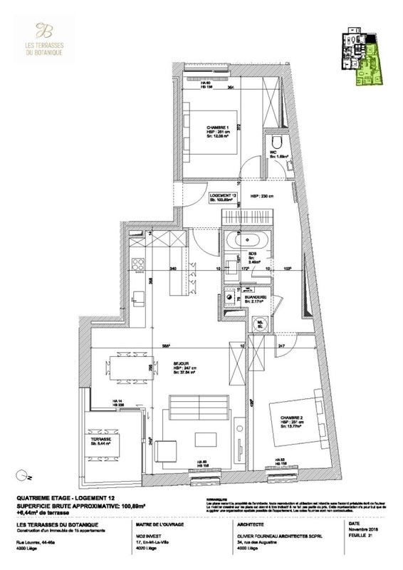
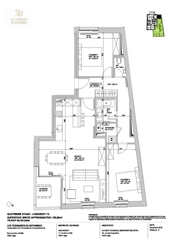
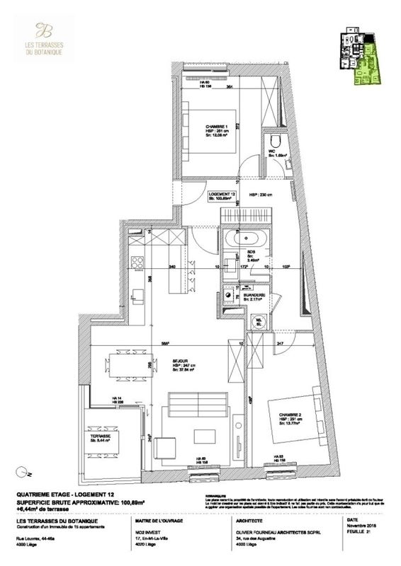
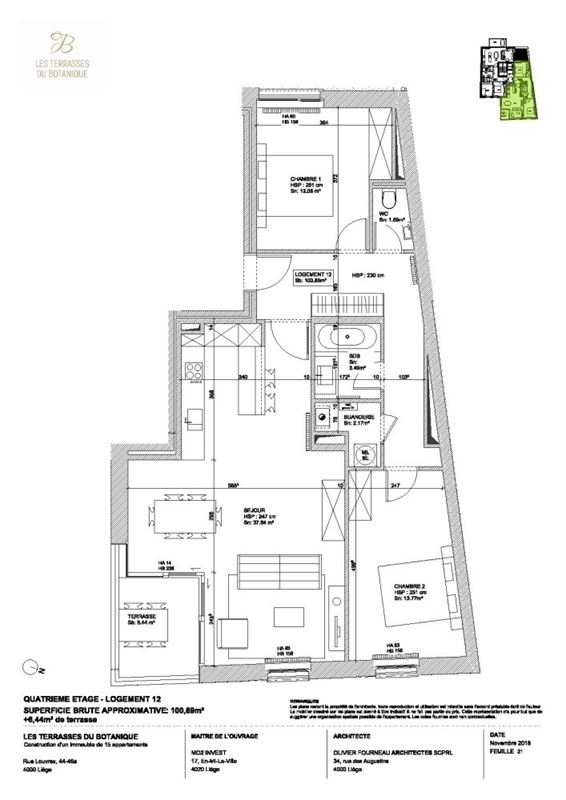
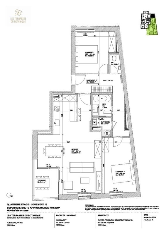
Situé au 4ème étage de la résidence Les Terrasses du Botanique, cet appartement de 101 m² comprend hall, living ouvert sur la cuisine, 2 chambres, wc, salle de bains, buanderie, terrasse de 6 m² orientée au sud et une cave - emplacement de parking au sous-sol en option. La qualité des finitions et des matériaux utilisés ainsi que l'architecture à la fois moderne, élégante et bien intégrée dans un quartier historique confèrent standing et personnalité aux différents appartements de la résidence. La proximité du jardin botanique, de la gare de Liège-Carré et des nombreux commerces de la rue Saint-Gilles et du centre ville en font un endroit de premier choix. Achat à 6 % de TVA possible pour habitant et investisseur!Général
- Prix 353500,00 €
- Meublé Non
- Surface habitable 101,00 m²
- Etat Vente sur plan
- Alarme Non
- Double vitrage Non
- Type d'énergie du chauffage C.C. au gaz
- Nombre de chambres 2
- Nombre de salle de bain 1
Intérieur
- Surface de la salle de séjour 37 m²
- Cuisine Oui
- Type de cuisine Armoires et appareils
Extérieur
- Année de construction 2025
- Orientation du bâtiment E
- Nombre d'étages 6
- Surface terrasse 1 6 m²
- Terrasse 1
- Jardin Non
Finances
- Prix 353 500 €
Autres biens à vendre




1
50 m²

1
56 m²

397 m²



3
129 m²

2
91 m²

1
55 m²

2
101 m²

2
91 m²

2
101 m²

2
101 m²

1
70 m²

2
88 m²

2
101 m²

2
91 m²

2
90 m²
901 m²

2
80 m²

2
95 m²
332 m²

5
135 m²
97 m²

2
94 m²
1202 m²

2
170 m²

3
180 m²
90 m²


40 m²

1157 m²

798 m²

798 m²

4
211 m²
4780 m²
Vous souhaitez vendre votre bien ?
Faites confiance à une agence efficace et réputée. Confiez-nous la vente de votre bien.


