Immeuble de rapport à LIÈGE

Plus d'informations à propos de ce bien

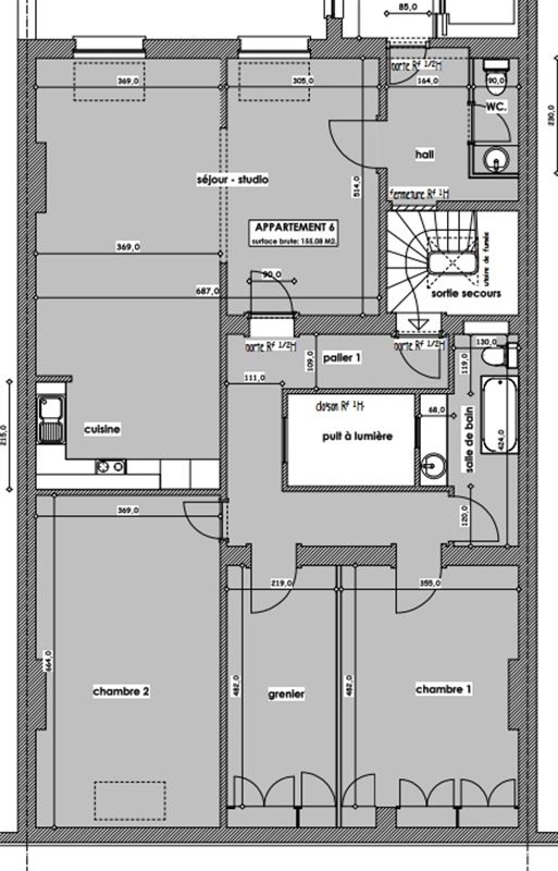
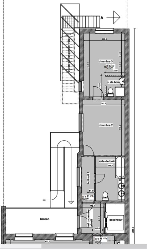
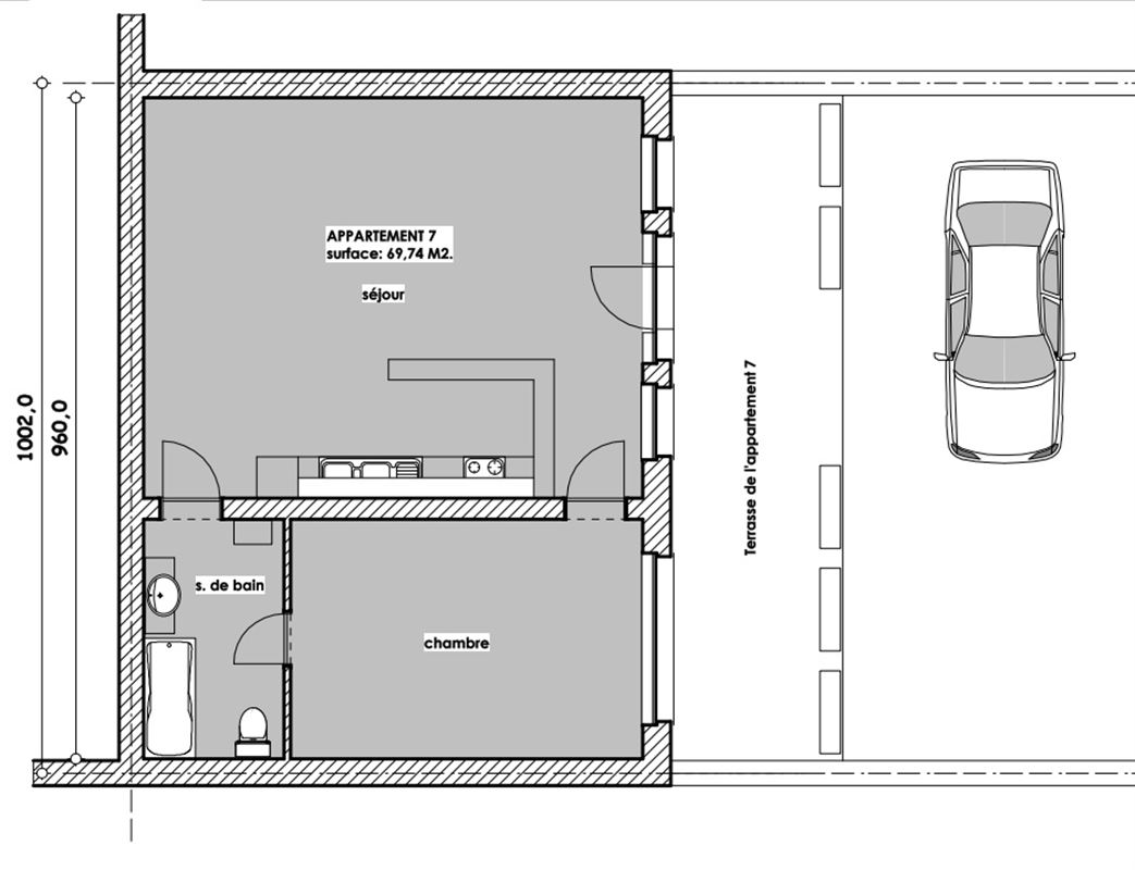
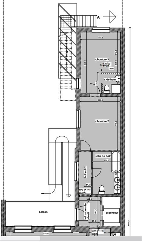
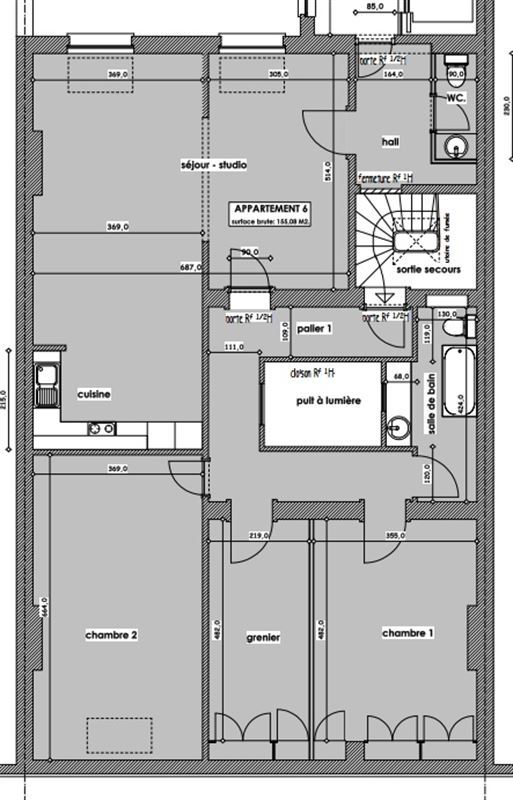
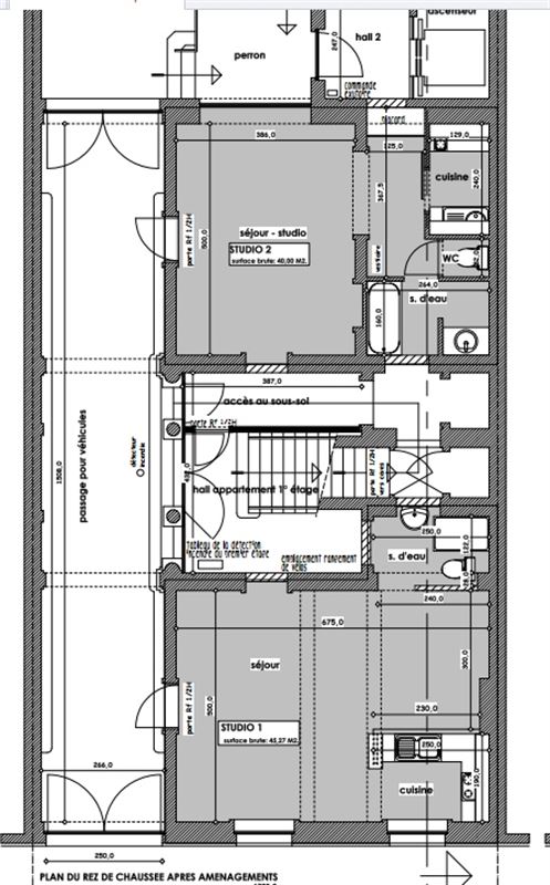
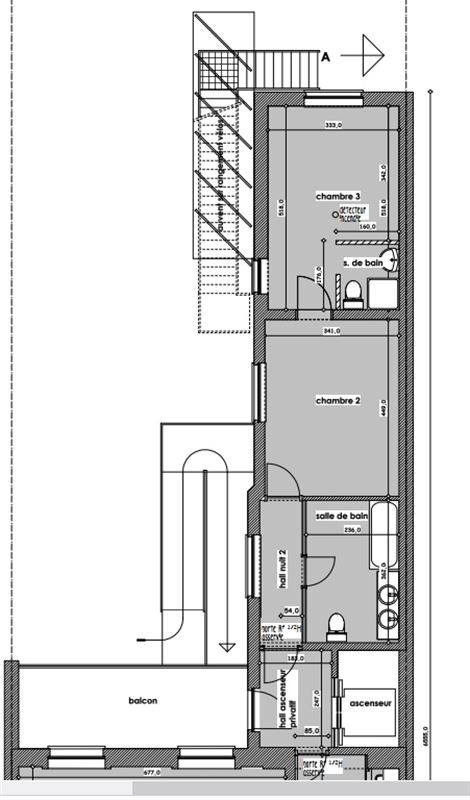
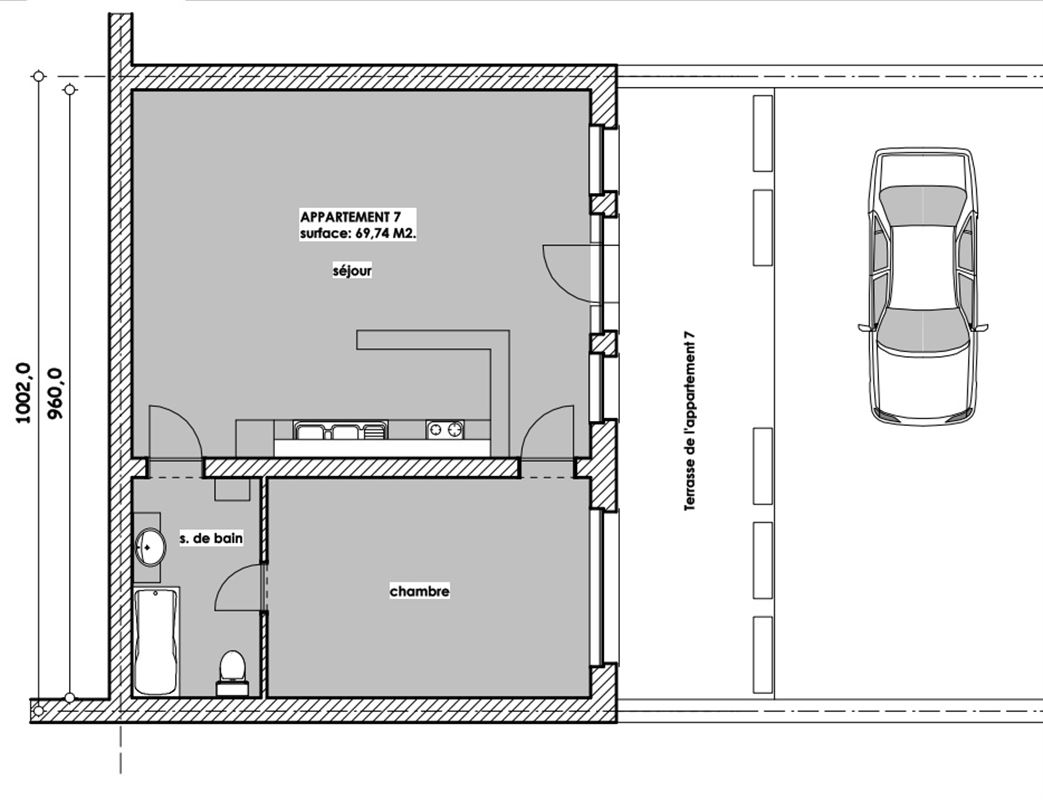
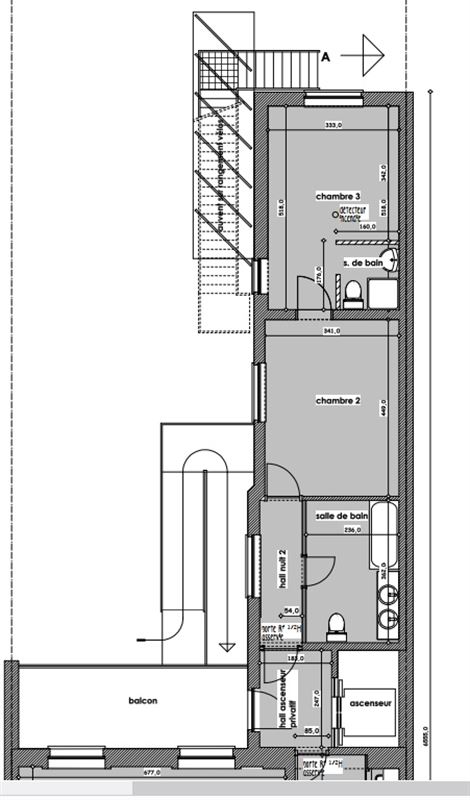
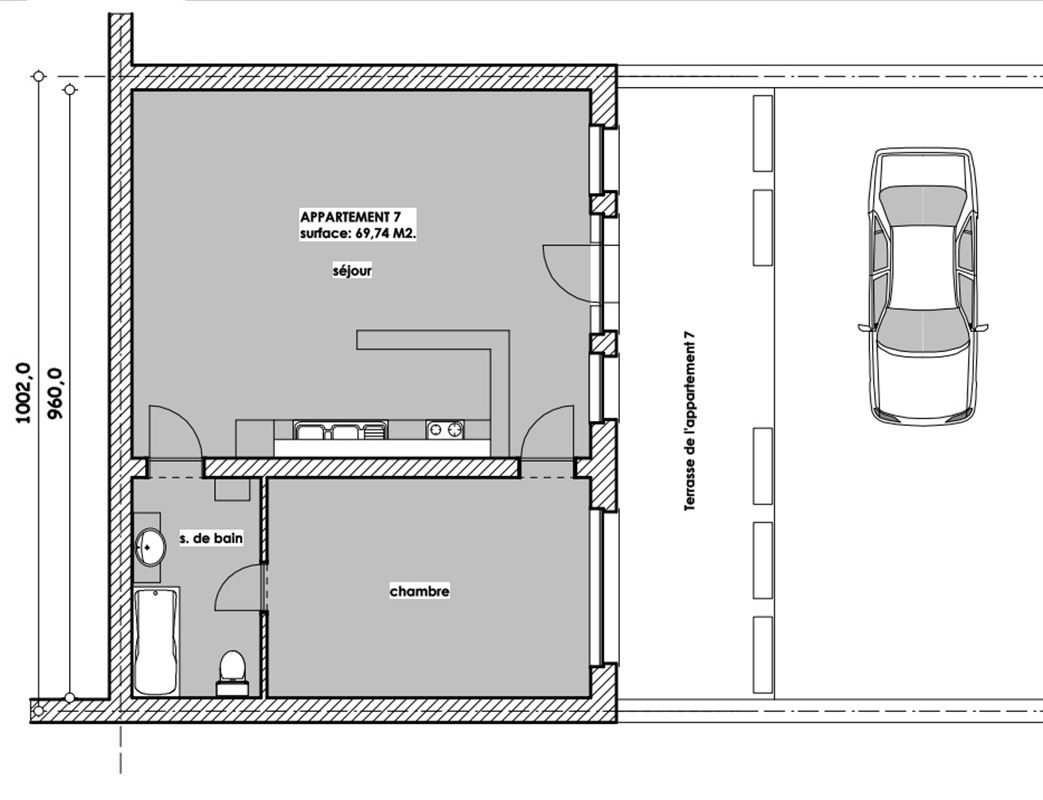
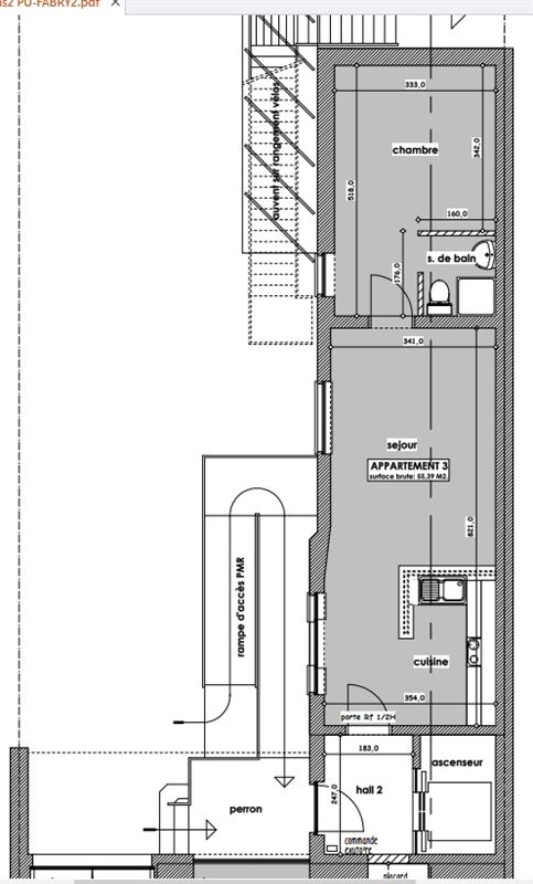
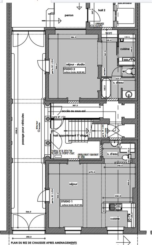
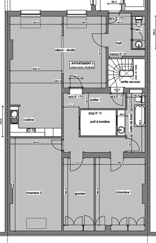
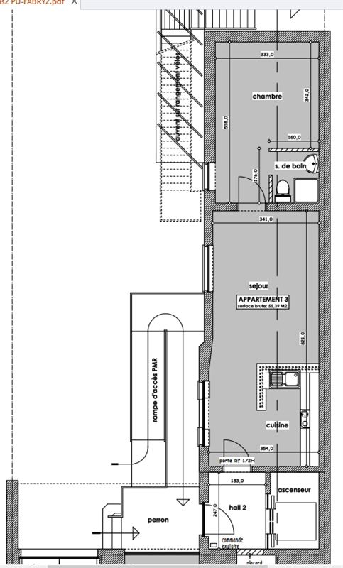
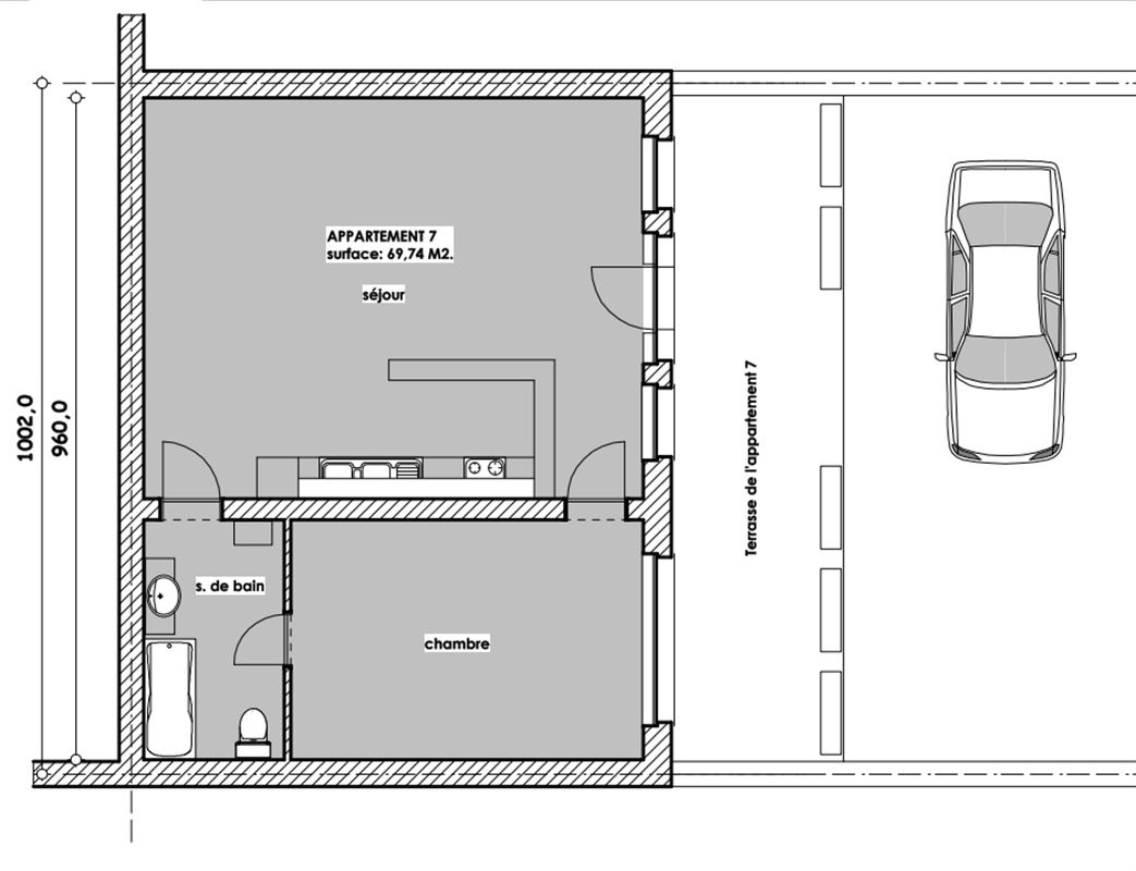
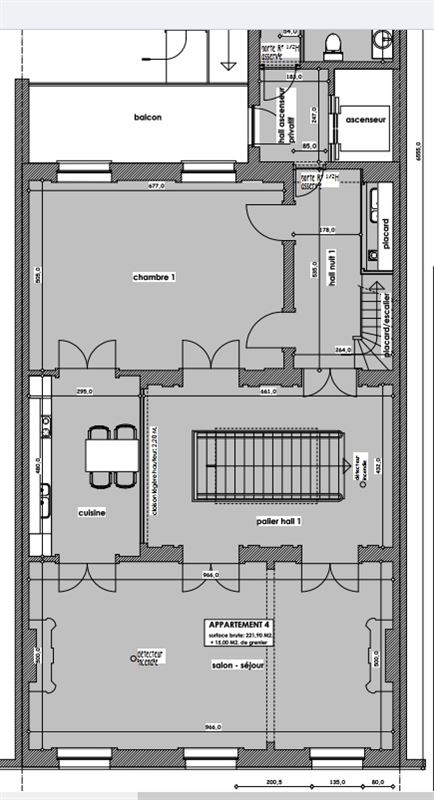
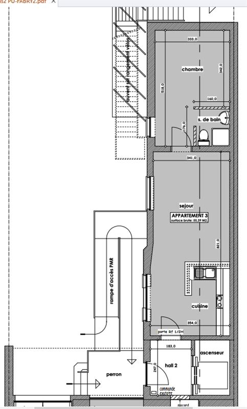
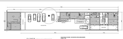
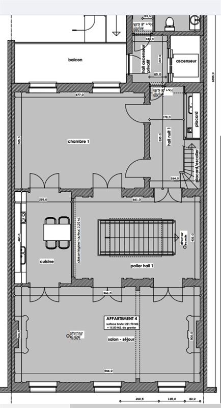
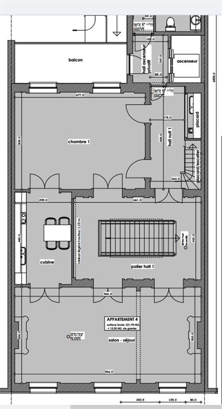
Bel immeuble de rapport idéalement situé entre la place Sainte-Véronique et la place de Bronckart. Il dispose d'une entrée cochère avec accès voiture à une cour comprenant 5 emplacements de parking. Il comprend: au rez-de-chaussée: 2 studios et un petit appartement (40, 45 et 55 m²), au 1er étage un splendide appartement de standing de 221 m² avec entrée individuelle, au 2ème étage, un grand appartement 2 chambres de 145 m² et, au 3ème étage, un appartement 3 chambres de 155 m² et, en fond de parcelle, une maison d'un seul niveau comprenant un appartement 1 chambre de 69 m². L'ensemble est loué, aux normes urbanistiques et incendie. L'immeuble dispose d'un acte de base. Sa situation privilégiée permet de constituer autant un investissement de choix qu'un achat pour aménagement partiel en bureau

Général

  • Prix 1350000,00 €
  • Meublé Non
  • Surface habitable 730,00 m²
  • Etat Bon état
  • Double vitrage Oui
  • Type d'énergie du chauffage C.C. au gaz
  • Nombre de chambres 10
  • Nombre de salle de bain 7

Intérieur

  • Toilettes 9
  • Cuisine Non
  • Type de cuisine Non communiqué

Extérieur

  • Année de construction 1875
  • Terrasse Non
  • Jardin Non

Energie

  • Classe énergétique
  • PEB No. 20191127017111
  • E spec 157 KWh/m².an
  • E totale 22483 KWh/an

Finances

  • Prix 1 350 000 €

Autres biens à vendre

28 500€
À vendre
Parking
Ref : 4446
LIEGE 1
35 000€
À vendre
Parking / Garage
Ref : 4533
LIÈGE
55 000€
À vendre
Garage/box
Ref : 4534
LIÈGE
550 000€
À vendre
Maison
Ref : 4539
LIÈGE
5
427 m²
152 m²
212 500€
À vendre
Appartement
Ref : 4507
LIÈGE
1
56 m²
180 000€
À vendre
Commerce
Ref : 4572
LIEGE 1
22 500€
Ref : 4575
LIÈGE
450 000€
À vendre
Duplex/triplex
Ref : 3086
LIÈGE
3
129 m²
318 000€
À vendre
Appartement
Ref : 3307
LIEGE 1
2
91 m²
212 500€
À vendre
Rez-de-Chaussée
Ref : 3341
LIEGE 1
1
55 m²
357 000€
À vendre
Appartement
Ref : 4020
LIEGE 1
2
101 m²
326 000€
À vendre
Appartement
Ref : 4087
LIEGE 1
2
91 m²
338 000€
À vendre
Appartement
Ref : 4120
LIEGE 1
2
101 m²
349 000€
À vendre
Appartement
Ref : 4130
LIEGE 1
2
101 m²
212 000€
À vendre
Rez-de-Chaussée
Ref : 4506
LIÈGE
1
70 m²
314 000€
À vendre
Appartement
Ref : 4517
LIÈGE
2
88 m²
345 000€
À vendre
Appartement
Ref : 4518
LIÈGE
2
101 m²
318 000€
À vendre
Appartement
Ref : 4519
LIEGE 1
2
91 m²
239 000€
À vendre
Maison
Ref : 4617
LIÈGE
5
135 m²
97 m²
340 000€
À vendre
Maison
Ref : 4667
LIÈGE
2
104 m²
130 m²
1 350 000€
Ref : 4682
LIÈGE
10
730 m²
12 500€
Ref : 4691
LIÈGE
12 500€
Ref : 4692
LIÈGE
215 000€
À vendre
Appartement
Ref : 4706
LIÈGE
2
235 000€
À vendre
Appartement
Ref : 4732
LIÈGE
2
84 m²
320 000€
À vendre
Maison de maître
Ref : 4738
LIÈGE
5
232 m²
526 m²
260 000€
À vendre
Maison de maître
Ref : 4740
LIÈGE
5
195 m²
225 m²
Nouveau
210 000€
À vendre
Appartement
Ref : 4741
LIÈGE
1
56 m²
729 m²
Nouveau
25 000€
Ref : 4747
LIÈGE
Nouveau
25 000€
Ref : 4748
LIÈGE
187 500€
À vendre
Appartement
Ref : 4730
LIÈGE
1
68 m²
Nouveau
120 000€
À vendre
Appartement
Ref : 4749
LIÈGE
1
43 m²
Nouveau
185 000€
À vendre
Appartement
Ref : 4750
LIÈGE
2
111 m²
Nouveau
170 000€
À vendre
Appartement
Ref : 4752
LIÈGE
1
74 m²
384 m²
Nouveau
230 000€
À vendre
Appartement
Ref : 4754
LIÈGE
2
141 m²
671 m²
35 000€
À vendre
Parking
Ref : 3694
LIEGE 1
110 000€
À vendre
Studio
Ref : 4195
LIÈGE
40 m²
450 000€
À vendre
Maison 4 façades
Ref : 4714
WANDRE
6
275 m²
840 m²
100 000€
À vendre
Terrain à bâtir
Ref : 4424
ESNEUX
1157 m²

Vous souhaitez vendre votre bien ?

Faites confiance à une agence efficace et réputée. 
Confiez-nous la vente de votre bien.

Estimez votre bien